00件
最近見た物件
00件
検討リスト
博多区での不動産売却・購入|福高不動産株式会社 > (戸建(売買))地域から探す > 糸島市 > 物件詳細
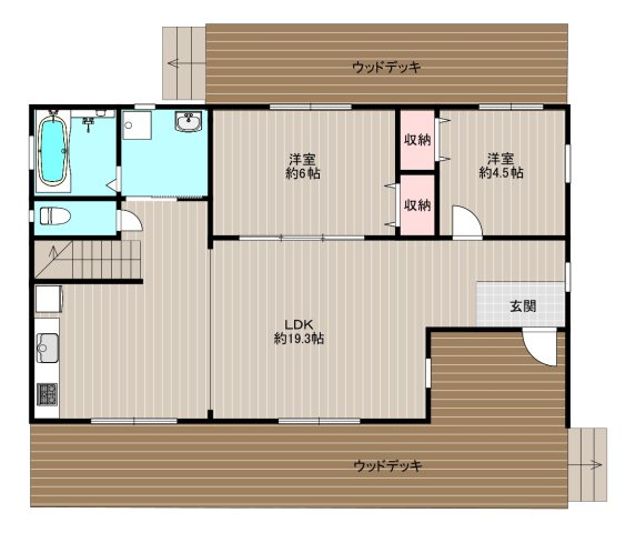
ぜひ一度見ていただきたい、「瑞梅寺ログハウス」です。使いやすくおしゃれでニーズの高いシステムキッチン付きの物件です。建物面積142.93㎡もあるので有効活用しましょう。お子様のいるご家庭にもお勧め。伸び伸びと生活できる中古戸建て物件がコチラです。不動産をお探しなら、当社にお任せください。当社は数多くの不動産情報を取り扱っております。ぜひ当社での不動産探しをご検討ください。










(※元利均等方式 金利5.00%まで ※返済年数5~50年まで入力できます)
(※ボーナスは年2回で計算しています。1000万円まで入力できます)
(※物件購入時、その他諸費用が発生する場合がございます)
| 所在地 | 福岡県糸島市瑞梅寺638-3 | ||
|---|---|---|---|
| 交通 | |||
| 間取り/詳細 | 2LDK/ | 建物面積(坪数) | 142.93㎡(43.23坪) |
| 価格 | 4,480万円 | ||
| 駐車場/月額料金 | 有/0円 駐車場3台以上可能 | ||
| 土地の敷金/保証金 | -/- | 借地料/借地期間 | -/- |
| 土地権利 | 所有権 | 土地面積(坪数) | 2192.00㎡(663.07坪) |
| 傾斜地部分面積 | - | 路地状敷地 | - |
| 私道負担面積/セットバック | -/無 | 高圧線下面積 | - |
| 地目/地勢 | 雑種地/平坦 | 接道状況 | 一方(西 公道 4.0m) |
| 建ぺい率/容積率 | -/- | 用途地域 | 無指定 |
| 都市計画 | 都市計画区域外 | 種別/構造 | 中古一戸建/木造 |
| 階建 | 2階建 地下1階 | 築年月(築年数) | 2006年 2月 (築20年) |
| 総区画数/販売区画数 | -/- | 向き | - |
| 現況 | 空家 | その他の法令上の制限 | - |
| 取引態様/引渡時期 | 一般媒介/相談 | 建築確認番号 | - |
| 物件番号 | 92970656 | 取引条件の有効期限 | 2026年05月04日 |
| 設備条件 |
|
||
| 備考 | 本物件土地の他、前面道路隔てた向かいの山林1500㎡と農地・原野の飛び地4170㎡もあり、別途売買可能です。 | ||
| 取扱会社 |
|
||
| QRコード |
このQRコードを読み取ることで、スマホでも物件情報を確認できます。 |
||
※地図上に表示される物件の位置は付近住所に所在することを表すものであり、実際の物件所在地とは異なる場合がございます。
糸島市の町名から探す
糸島市にある駅から探す